Ryanandlinda 2024
Linda & Ryan Lowe | RE/MAX Centre Realty | 814-231-8200 Ex. 305/352

378 WALKER DR

STATE COLLEGE, PA 16801

PRICE: $28

Active | MLS# pace2516602

The Details

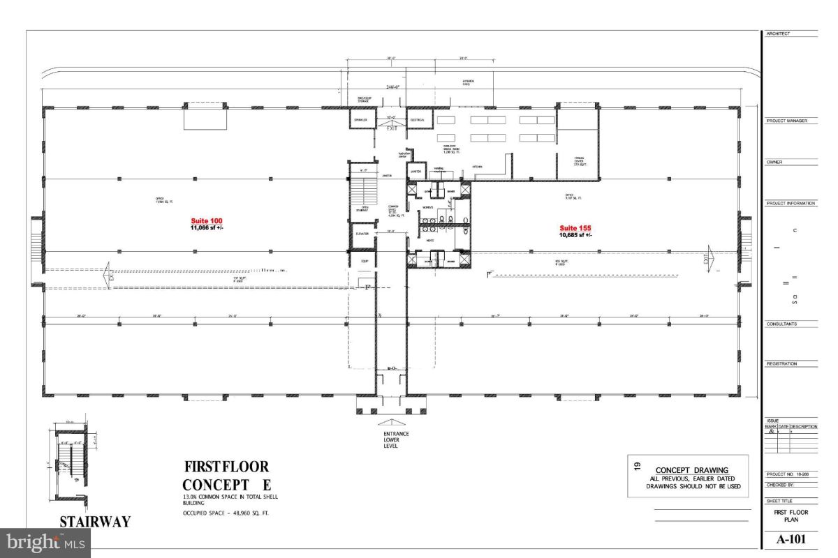
Proposed 2-Story, State-of-the-Art professional office building.  24,000sf per floor plate on two levels (48,000sf total) allows for plenty of flexibility.  This building will accommodate many uses including Office, Medical, R&D, Government, Law, Financial, light manufacturing and other uses.  The building will be built to stringent energy efficiency standards to keep operating costs low.  Landlord offers free concept planning for your use to make sure the space is right for your business and use.  Great views of PSU Beaver Stadium and East Campus. Site work is 90% complete to allow for a quick start and occupancy in 2026. The property can still be modified to a tenant’s needs, including shipping/receiving docks, higher ceiling clearances, plumbing, electric and security. Lease Rate is negotiable and depends on tenant’s requirements. Property is/will be professionally managed by Torron Group. There is plenty of free parking and easy access/visibility off of SR322 Bypass/Mt. Nittany Expressway and East College Avenue. Give me a call today to see the space and make 2026 the year you finally get into the office space you and your company deserves. Purchase and/or investment opportunites are available for this property. Please call for details.


Property Overview


SubdivisionCLOVER HIGHLANDS
CountyCENTRE
MunicipalityCOLLEGE TWP
HeatCentral,Energy Star Heating System,Forced Air,Heat Pump - Gas BackUp,Programmable Thermostat,Zoned
A/CCentral A/C,Energy Star Cooling System,Heat Pump(s),HRV/ERV,Multi Units,Programmable Thermostat,Zoned
FuelNatural Gas,Electric
SewerPublic Sewer
RoofMetal,Rubber
RoadsAccess - On Grade,Paved
Total Taxes$0
Satellite View

Directions: fasd

Sq. Footages
Main Floor Sq. Ft.
2nd Floor Sq. Ft.
3rd Floor Sq. Ft.
4th Floor Sq. Ft.
Basement Sq. Ft.
Total Finished Sq. Ft.48000
Rooms Main Upper Lower Bsmt.
Zoning RO-RESIDENTIAL OFFICE
Property Code
Possession
Assessed Value $0.00