Ryanandlinda 2024
Linda & Ryan Lowe | RE/MAX Centre Realty | 814-231-8200 Ex. 305/352

308 MADISON ST

STATE COLLEGE, PA 16801

PRICE: $499,900

Pending | MLS# pace2517042

The Details

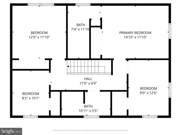
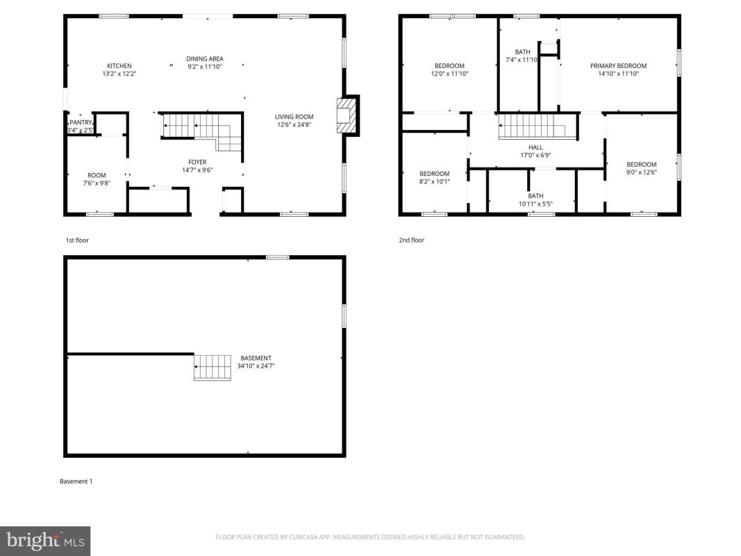
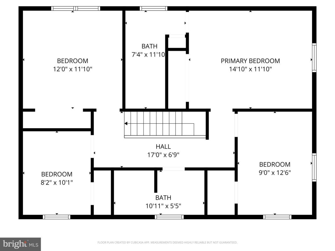
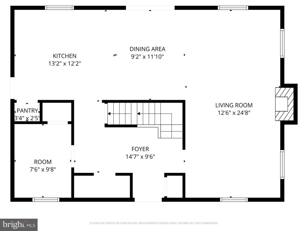
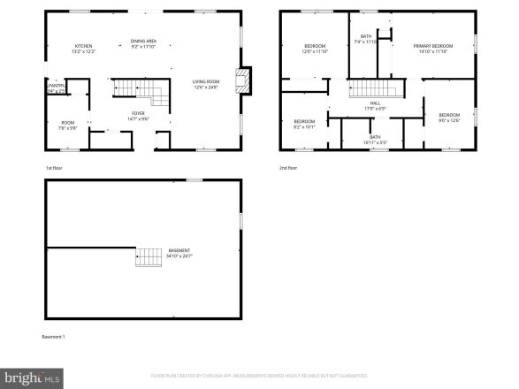
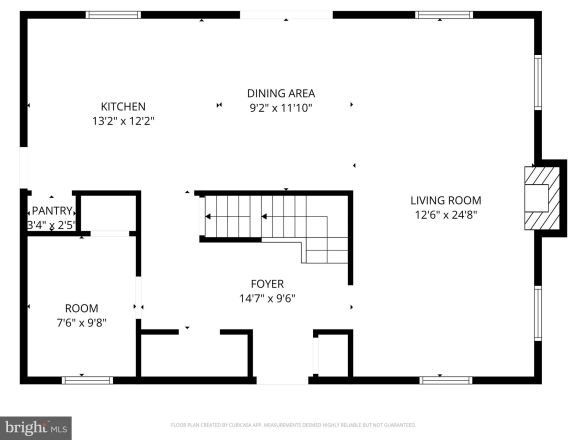
Discover this gorgeous, move-in ready 4 bedrooms, 2.5 bath, two story home in the highly sought-after Glenview community – beautifully updated throughout and ready for its new owner! Step into a stunning foyer that opens into a spacious living room featuring gleaming hardwood floors, abundant natural light, and a cozy wood-burning fireplace. The living room flows seamlessly into the elegant dining area, complete with lovely glass doors that leads to a large back patio – perfect for outdoor entertaining. The fully remodeled kitchen is a showstopper, featuring brand-new cabinetry, quartz countertops, and stylish backsplash, stainless steel appliances, a gas range and a beautiful kitchen island. The main level also includes a bright office and a fully updated half bath. Upstairs, you will find a spacious owner’s suite with a beautifully updated full bath showcasing quartz countertops on a double vanity and gorgeous tile surround. Three additional bedrooms and another remodeled full bath complete the upper level, offering plenty of room for everyone. The lower level provides fantastic potential with an unfinished basement perfect for storage, a home gym, or future expansion, along with a convenient laundry area. With fresh paint, new trim, updated lighting, and all the modern finishes you’ve been searching for – plus a fully fenced-in backyard – the Glenview truly has it all. Don’t miss your chance to make it yours!


Property Overview


StyleTraditional
Year Built1967
SubdivisionGLENVIEW
School DistrictSTATE COLLEGE AREA
CountyCENTRE
MunicipalityFERGUSON TWP
HeatBaseboard - Hot Water,Heat Pump(s)
A/CCentral A/C
Fireplaces1
FuelElectric,Natural Gas
SewerPublic Sewer
Garage Stalls2
Total Taxes$3569.52

$
$
$
$
$
Principal &
Interest${{ vm.principal }}
Private Mortgage
Insurance${{ vm.pmi }}
Taxes &
Insurance${{ vm.taxes }}
Monthly Payment
${{ vm.monthlyPayment }}

*All fees are for estimate purposes only.

Satellite View

Directions: Head west on US-322 BUS W/S Atherton St toward Branch Rd. Continue straight onto S Atherton St. Turn left onto Westerly Pkwy. Turn left onto Madison St. Destination will be on the right.

Sq. Footages
Above Grade Finished Sq. Ft.1872
Below Grade Unfinished Sq. Ft.936
Total Finished Sq. Ft.1872
Rooms Main Upper Lower Bsmt.
Subdivision GLENVIEW
Zoning R
Property Code 0
Possession Settlement
Assessed Value