
4943 SR 103
LEWISTOWN, PA 17044
PRICE: $175,000
Pending | MLS# pamf2052988
The Details
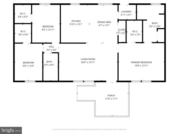
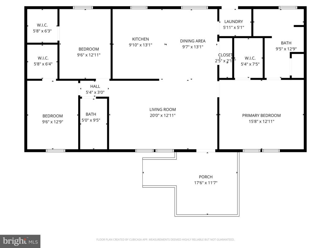
3-bed, 2-bath manufactured home in Granville Township offering 1,404 sq ft on a 0.50+ acre lot. Built in 2010, with plenty of recent updates, including a new kitchen, new Central AC, new blacktop driveway, and new gutters. Many of the big-ticket items are already taken care of for you. Functional layout with all bedrooms featuring walk-in closets. The owner’s suite includes its own private bath. The main living areas feel open and comfortable, making it easy to settle right in. Outside, the half-acre lot gives you plenty of room to enjoy—whether that’s relaxing, entertaining, or adding your own touches. Great option if you’re looking for space, updates, and a move in ready home without over complicating things.
Property Overview
| Style | Ranch/Rambler |
| Year Built | 2010 |
| Subdivision | NONE AVAILABLE |
| School District | MIFFLIN COUNTY |
| County | MIFFLIN |
| Municipality | GRANVILLE TWP |
| Heat | Forced Air |
| A/C | Central A/C |
| Fuel | Oil |
| Sewer | Public Sewer |
| Driveway | 2 |
| Total Taxes | $1926.05 |
Interest${{ vm.principal }}
Insurance${{ vm.pmi }}
Insurance${{ vm.taxes }}
*All fees are for estimate purposes only.
Directions: From Junita Street turn onto SR105N. Drive approximately 3 miles and the property will be on your right.
| Sq. Footages | |
|---|---|
| Above Grade Finished Sq. Ft. | 1404 |
| Total Finished Sq. Ft. | 1404 |
| Rooms | Main | Upper | Lower | Bsmt. |
|---|
| Subdivision NONE AVAILABLE |
| Zoning R |
| Property Code 108 |
| Possession Settlement |
| Assessed Value |




























































